在新加坡住别墅,是一种怎样的体验?

在新加坡住别墅,是一种怎样的体验?
很多在新加坡居住的人都很羡慕美国或澳洲的大别墅。难道住在新加坡,这辈子就和别墅无缘了么?并不是~
新加坡的私宅分为有地住宅(真正意义上的别墅,除升涛湾以外,外国人不可买)以及公寓(condominium and apartment,即普通多层私宅,外国人可买),其中公寓里面最壕的就是联排别墅了。联排别墅的地契及性质与公寓完全相同,因此外国人可买;同时,还可享受公寓设施,可以说是居住舒适度最高的选择之一。而且值得一提的是,新加坡政府在2012年4月起规定,任何开发商不许再建联排别墅。因此,联排别墅已成为新加坡房地产市场上的稀缺资源,卖一间,少一间!

联排别墅于19世纪四五十年代发源于英国新城镇时期,指在城区联排而建的市民城区住宅,一般由几栋或者由十几栋小于5层的低层住宅并联组成,每栋的面积大约在300平方米,前后有自己的独立花园,另外还有专用车位或者车库。

很多人都认为这类低层、低密度的花园住宅能满足他们对良好居住环境的需要,能提供一种“宽松、舒适、安静、自由独立”的居住环境。联排别墅迎合国际住宅与低密度、低容积率、环保节能住宅趋势发展进程,特点如下:
1 私密性强,左右是共用墙体,上下则有天有地,可以有院落,有露台,有私家车库。
2 空间宽裕,地上层数一般2-3层,基本都有地下室及天井。
3 设施齐全,别墅的居住环境,公寓的会所配套服务。
4 全时保安,24小时CCTV,即使人在他国,也不用担心家中安全。
5 奢享生活,窗外泳池,触手可及。

以“花园社区”为设计理念的联排别墅eCO


eCO位于新加坡东部勿洛,步行5分钟即达丹那美拉转换站,搭乘便捷的公共交通方便地前往新加坡各地。该社区以“花园社区”为设计理念,路旁雨树浓荫如盖、遮天蔽日。居民可以享受巧夺天工、风格各异的室外环境和花园空间,这里是人与自然和谐共处的理想家园。

在新加坡政府公布的“再创我们的家园”翻新计划中,政府将斥资3000万新元改造勿洛镇中心,为这里注入更多的活力,使之转型成为东部活力四射的城市枢纽。计划中包含新的熟食中心、综合体育中心、购物商场和带空调的巴士转换站,为繁华的勿洛镇中心锦上添花。此外,一条长达3.8公里的绿色通道也正在筹备建设,这条新的通道将勿洛蓄水池连接至著名的东海岸公园,并设有脚踏车和行人走道,道旁将设公园和休闲运动设施。

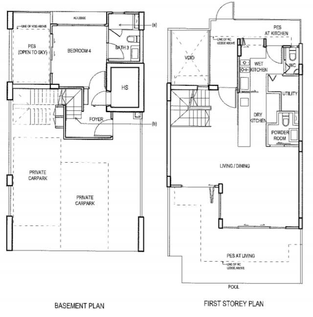
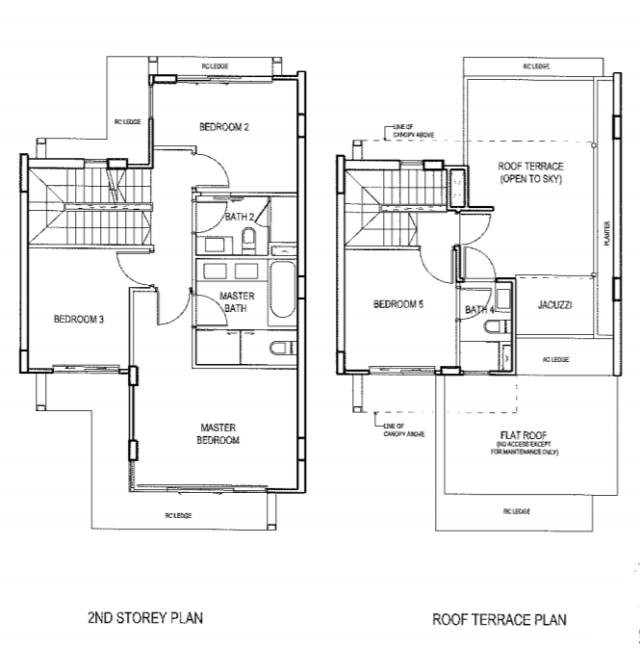
最后附上传说中的联排别墅的户型图:


价格从$288万新元起,**附带条件条款

有地住宅的生活享受,配以全套公寓设施。不限制外国人购买!
对eCO或新加坡任何房产项目感兴趣的朋友,欢迎点击底部的阅读原文填写表格免费咨询新加坡房地产投资租赁等相关问题。也可以直接加微信号xinjiapoyan6咨询。所有信息均将保密。
评论